VAGABOND 2

Nouveau porteur avec V6 3l, boîte auto, 4X4 et réducteur enclenchables.
L’aménagement du précédent selon nos plans nous convenant parfaitement, nous y sommes restés fidèles.
Cette fois, c’est Alain qui l’a entièrement réalisé en modifiant seulement ce qui était nécessaire pour accuellir les éléments plus d’actualité à savoir:
- le lit de pavillon relevable électrique et qui descend plus bas ( un marche pied à 2 marches suffit)
- Isolation liège projeté + armaflex + CP recouvert de vaigrage.
- Batterie lithium 250Ah
- Convertisseur 3000W
- Plaque de cuisson à induction ( plus de gaz!)
- Chauffeau sur conduite chauffage à air pulsé + résistance 500W
- Filtre eau Sea Gul purificateur
Le coffre arrière est resté entièrement libre de tout équipement nous permettant de tout transporter à l’intérieur, j’ai même ajouté des plaques Mattrax.
Sous le capot, compresseur ARB + Dévidoir à enrouleur + filtre à GO Raccor….
A l’extérieur, blindages moteur, boîte de transfert et slider pont AR. Jantes BlackRhino +pneus BF 245-75-16, réservoir GO 170l en alu, panneaux solaires 325W.
Tous les autres équipements identiques au précédent.
VAGABOND 1
Nous avons confié l’aménagement à Mr Lo Bello, boss de la société Isère Evasion à Grenoble. Remarquablement à notre écoute, il a effectué les travaux en se pliant à nos nombreuses exigences et en respectant scrupuleusement nos plans. Encore une fois, merci à lui et à son équipe.
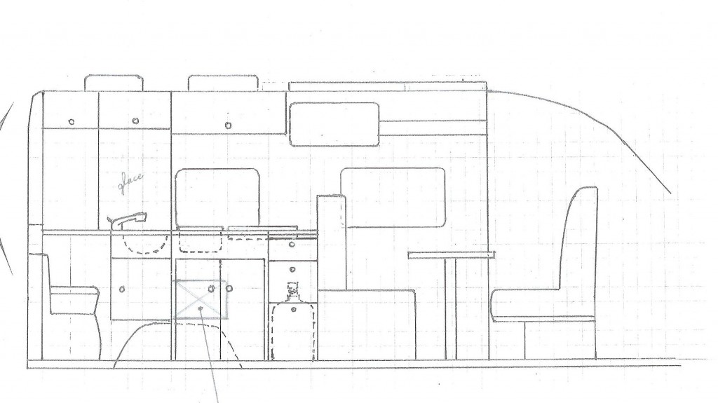
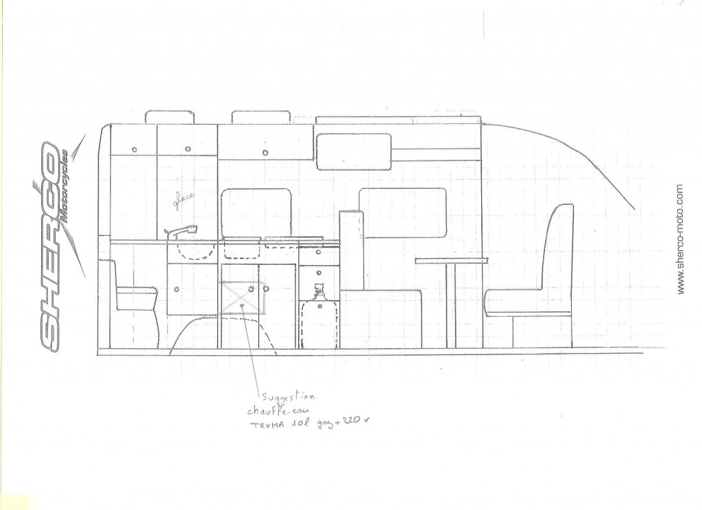
Nos Plans
Avant de créer les plans d’aménagement, Alain a déterminé le volume du coffre en fonction du matériel que nous voulions emporter. De plus il tenait à ce qu’il soit accessible seulement par une porte AR afin de pouvoir le sécuriser. Pour la partie habitable, en prenant en compte les volumes de rangement que nous souhaitions et d’une cuisine en L avec plan de travail, un frigo de 130 l en hauteur, la solution du lit de pavillon s’est imposée pour nous laisser un espace de vie confortable.




L’Aménagement



Ouverture des fenêtres et aménagement des planchers




Fabrication des meubles



Fabrication du lit
VISITE GUIDEE







Equipement:
-réservoir eau propre 110 l.
-réservoir eau usée 50 l.
-frigo à compression 130 l.
-chauffage Webasto gasoil
-chauffe eau Truma gaz
-plaque de cuisson 2 feux gaz
-bouteille 13 kg gaz
-2 panneaux solaires x100 w + régulateurs I boost
-2 batteries 100 Ah
-chargeur de batteries 110-220 V
-convertisseur 300 W-
-douchette extérieure(dans coffre à gaz)
-store Fiamma
-éclairage extérieur
-occultations de cabine Remis
-sèche serviettes Truma
-3 lanterneaux (lit-salle de bains-cuisine)
-4 baies Seitz (lit-dinette-porte latérale-cuisine)
-banquette homologuée 2 places
-embases de sièges av. tournantes
-lit de pavillon avec sommier à lattes l.135
Les accessoires installés par Alain
-Alarme
-Radar de recul
-Détecteur de gaz
-Pare buffle
-Renfort pneumatique de suspensions avec compresseur,réserve d’air(à laquelle j’ai ajouté une sortie pour un gonfleur) J’ai installé le tableau de commande au tableau de bord.



De retour des Amériques, Alain a profité de notre escale en France pour « africaniser » Vagabond :
Montage d’un snorkel avec préfiltre à air cyclonique. Celui ci rejetant jusqu’à 99°/° des impuretés, nous n’aurons plus besoin de nous soucier de l’état du filtre à air.
-Installation d’un compresseur d’air ARB (174l/mn) pour regonflage rapide des pneus en sortant des zones sablonneuses.
-Remplacement de la barre stabilisatrice AR par une barre renforcée.
-Remplacement des 4 amortisseurs par des amortisseurs double effets à gaz.
-Remplacement des pneus BFGoodrich 225/75/16 par des 245 et montage sur des jantes alu.




Retour d’expérience après l’Afrique:
-Montage d’un purificateur d’eau Doulton avec son robinet dédié pour ne plus avoir à acheter de l’eau en bouteilles plastiques.


Les amortisseurs Scorpion nous ont rapidement créé des problèmes, nous avons dû démonter les AV et les remplacer par des amortisseurs d’origine car les coupelles de tête d’amortisseur AV se sont détruites


Après avoir remplacé les coupelles, un amortisseur s’est cassé car l’écrou de piston s’est dévissé causant la mise en travers de la tige. Les AR ont tenu plus longtemps bien que les tiges se soient rapidement abîmées suite à la destruction des chaussettes de protection néoprène beaucoup trop fragile.




Ensuite les boulons de fixation de tête supérieure se sont tour à tour cassés au ras du chassis. J’en ai donc déduit que le montage de ces boulons en porte à faux n’est pas adapté à des amortisseurs plus efficaces et donc plus freinés que ceux d’origine. Je me suis donc procuré les pattes de renfort « N4 » pour le montage « en chappe »ainsi que les pattes de renfort des fixations inférieures. Ne connaissant pas de coupelles silent blocs renforcées pour l’AV, je continuerai avec les amortisseurs d’origine.


Les équipements conçus, fabriqués et installés par Alain
-Un marchepied motorisé (moteur d’essuie glace) entièrement rétractable sous le chassis.
-Des protections moteur et boîte de transfert.
-Un support pour la roue de secours supplémentaire.
-Un combiné pare-chocs ar., marche d’accés au coffre, blocage antivol de portes.









En Afrique par 2 fois j’ai heurté le nez de pont sur des cailloux, le carter de nez de pont a glissé dessus mais ils ont légèrement plié le couvercle tôle, suffisament pour que le joint casse et crée une fuite d’huile. Lors d’une rando à VTT dans la garrigue, j’ai trouvé un sabot de moto d’enduro que j’ai rapidement adapté sur le nez de pont.

Aménagement et chargement du coffre.






Bonjour Monsieur!
Magnifique site et surtout un voyage d’exception! Pourriez-vous m’indiquer l’année de fabrication de votre Sprinter et les éventuels soucis rencontrés avec lui durant vos voyages? Comment avez-vous fait avec la qualité du gazole en Afrique et comment a-t-il réagit?
Je vous remercie d’avance du temps consacré à mes réponses.
belle suite à vous!
Bonjour,
Je suis client chez make may van
Vous pouvez me contacter?
Merci
Cordialement
Bonjour,
Tout d’abord, bravo pour le temps pris à partager votre passion et vos aventures. Ayant déja eu 2 petit fourgon partiellement aménagés, ma compagne et moi souhaitons passer à un véhicule 4X4 type L2H2. 2 choix s’offre à nous DUCATO 4X4 DANGEL et mercedes 4X4 (budget supérieur…).Ma question, hormis le réseau mondial, avez vous eu ce meme dileme…….? Sportivement Marc
Bonjours , j aimerais savoir maintenant que vous avez plusieurs millier de kilomètres de parcouru avec votre fourgon , si cela serais a refaire quel rectification auriez vous fait lord de votre aménagement initiale ex: fourgon peut être plus long ou roue double arrière ,capacité de réservoir plus grand,pneu différant car voyez vous moi et mon épouse nous nous reconnaissons beaucoup dans votre style d aventure et envisageons d en faire autan encore un gros merci de nous faire partager vos aventure . Christian et Marie du Québec ,Canada.
Bonjour
Comme vous nous partons en AMS et voyagerons en fourgon aménagé par Isere Evasion. Peut-être aurons-nous l’occasion de nous rencontrer.
Bon voyage